Beweging centraal
- Plaats Bennekom, Revalidatiecentrum en GGZ Het Baken
- Realisatie 2020
- Opgave Revalidatiecentrum en GGZ
- In samenwerking met Van Wijnen
- Opdrachtgever Van WIjnen
Compact gebouw dat zich voegt in het park
Het nieuwe revalidatiecentrum kenmerkt zich door zijn compacte hoofdvorm. Door deze vorm past het gebouw mooi in het rijke park. De massa van het gebouw kent logische verschillen en voegt zich hiermee naar zijn omgeving. Zo is de massa getrapt uitgevoerd naar het zuiden, zodat royale dakterrassen ontstaan. Ook bouwt de massa af richting de naastgelegen woningen voor een subtiele overgang.

Ruimtelijke hart
In het nieuw te bouwen centrum staat revalidatie centraal. Zo is de oefenzaal het hart van het gebouw. Een licht en ruimtelijk atrium geeft dit hart extra vorm. Het gebouw is zo ontworpen dat het stimuleert tot oefenen om de revalidatie te bevorderen. Behalve revalidatie komen in het nieuwe gebouw ook andere zorgfuncties, zoals dagbehandeling en wonen (somatiek). Verder zijn er een restaurant en beperkte winkelvoorziening.

Wonen met zicht op het park
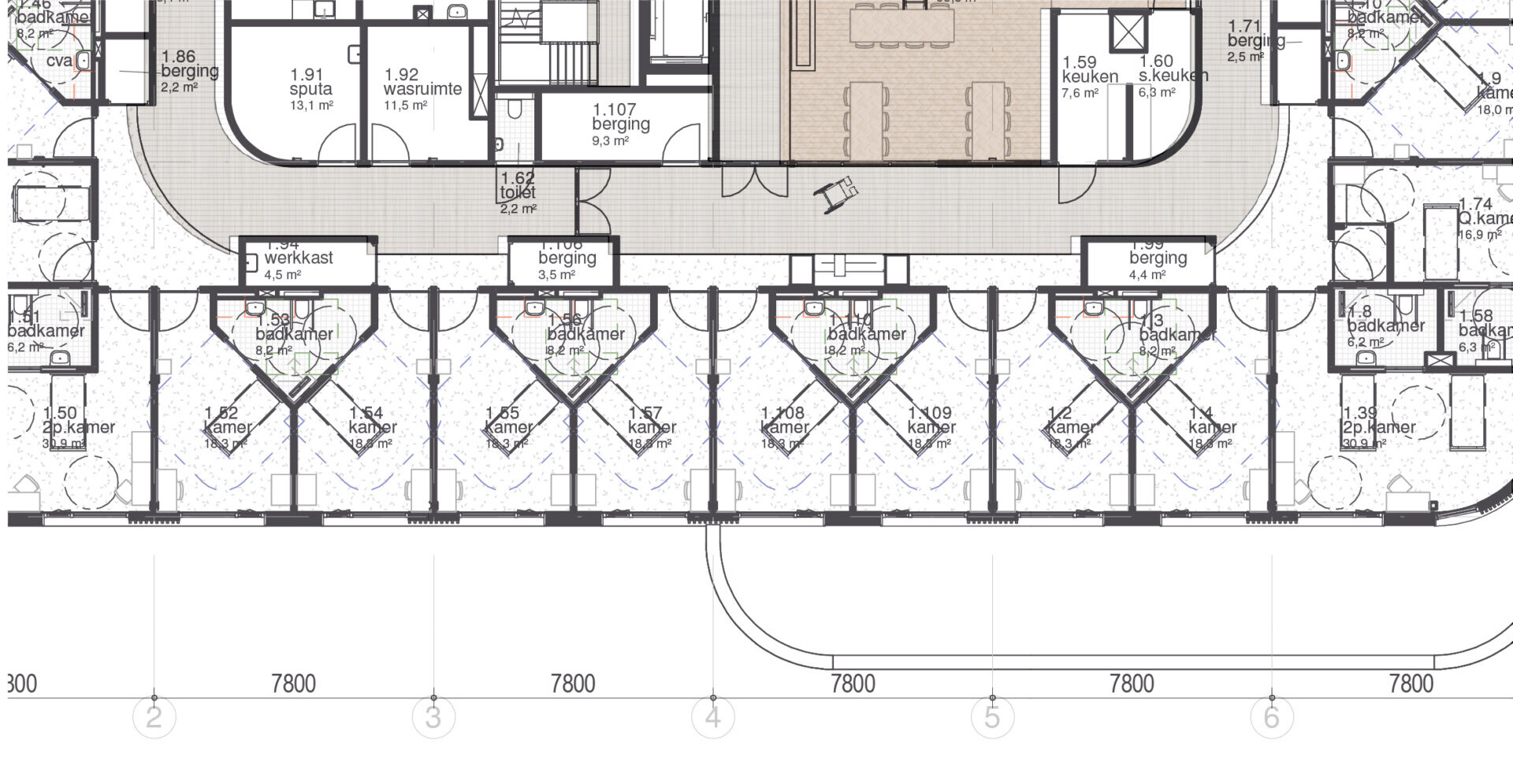
Alle kamers liggen aan de gevel en de ondersteunende functies liggen aan het atrium. Alle kamers hebben lage borstweringen, zodat alle bewoners mooi zicht op het park hebben. De rustige en repeterende gevelcompositie laat het park en groen maximaal tot zijn recht komen.



Slimme bouwtechniek: duurzaam, flexibel en snel
Het gebouw bestaat uit een staalskelet met lichte binnenwanden en prefab gevelelementen. Hier is in het bouwteam om meerdere redenen voor gekozen. Ten eerste zal de nieuwbouw strak naast de tijdelijke huisvesting en in een woonwijk worden gebouwd. Een snelle en stille bouwmethode is daarmee voor de kwetsbare doelgroep van groot belang. Ten tweede vraagt een snel veranderende zorgvraag om flexibele gebouwen op de langere termijn. Door te kiezen voor een kolommenstructuur met lichte vulling is het gebouw maximaal flexibel in de toekomst.


Samen ben je slimmer
Samen met het zorgteam heeft MIX de werking van de afdeling goed doorgrond en een heldere plattegrond gemaakt. Zo kenmerken alle gangen zich door diverse kleine ruimtes waar zorghulpmiddelen, medicijnen, zitplekken, benodigdheden en kleine oefenmogelijkheden altijd overal dichtbij zijn.


Projectdetails
| Opgave | Revalidatiecentrum en GGZ |
| Opdrachtgever | Van Wijnen |
| Gebruiker | Opella |
| Aannemer | Van Wijnen |
| Constructeur | conStabiel | Adviseurs in Bouwtechniek |
| Installateur | Croonwolter&dros |
| Interieur fotografie | Mcklin Fotografie |
| Realisatie | 2020-2021 |